U9彩票

斜插式滤筒除尘器,斜插滤筒除尘器厂家,斜插式滤筒除尘器原理-斜插式滤筒除尘器-通过环评验收-河北午阳环保设备有限公司

网站地图
河北午阳环保
15075705105
热门点击: 除尘器改造碎石厂生产线除尘器振动筛除尘器中频炉除尘器仓顶除尘器选矿厂除尘器金属硅矿热电炉除尘器石料厂除尘器单机除尘器
网站图片
斜插式滤筒除尘器-斜插滤筒除尘器厂家-斜插式滤筒除尘器原理

斜插式滤筒除尘器

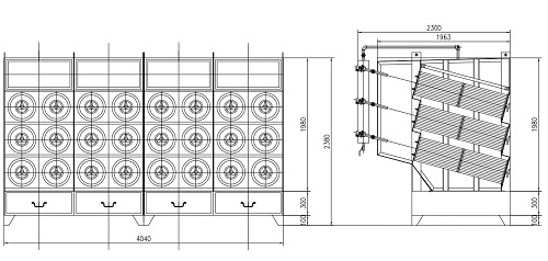
斜插滤筒除尘器厂家,斜插式滤筒除尘器原理斜插式滤筒除尘器是一种新型的滤芯粉尘收集环保设备,是利用325*600型除尘滤筒进行粉尘收集,可以自由搭配、安装方便、节约空间,_的密闭式结构,防止大量湿气及粗颗粒的进入。当滤筒_换为覆膜滤筒后,配置合适的风机及吸气装置,可以作为中央烟尘净化器。
产地:河北省>泊头市
供应商:河北午阳环保设备有限公司

技术服务热线: 13784725611   15075705105
传真:0317-8388883

斜插式滤筒除尘器详细内容

滤筒除尘器是指以滤筒作为过滤元件所组成或采用脉冲喷吹的除尘器。其结构是由进风管、排风管、箱体、灰斗、清灰装置、导流装置、气流分流分布板、滤筒及电控装置组成,类似气箱脉冲袋除尘结构。
斜插式 滤筒除尘器 工作原理
含尘气体在风机的引导下进入除尘器后,由于气流端面的突然扩大及气流分布板的作用,气流中一部分颗粒粗大的尘粒在重力和惯性力的作用下,沉降到灰斗;粒度细、密度小的尘粒进入过滤室,通过布朗扩散和纤维拦截等综合效应,使粉尘沉积在滤筒的滤料表面,净化后的气体进入净气室内,由出风口经风机排出。滤筒除尘器的阻力随着滤筒的表面积灰增加而变大,当阻力达到设定值时,通过反吹系统脉冲阀经喷吹管的小孔,喷射出一股高速高压气流,通过进行清灰。此时PLC程序控制脉冲阀的启闭,当脉冲阀开启时,气包内的压缩空气通过文丘里管的扩充,均匀的进入滤筒内部,在滤筒内部形成瞬间的正压,产生巨大的振动,使沉积在滤料上的粉尘脱落,掉入灰斗内,收集的粉尘通过卸灰阀,排出到灰桶内。
 滤筒脉冲除尘器的特点
1、采用了沉流式布局及滤筒斜装结构,因而除尘器在工作过程中同步清灰效果好。
2、净化效率好,对于亚微米以上的粉尘有99.9%以上的净化效率,设备运行阻力低,有效节约除尘系统的能耗。
3、尘气入口设置挡尘板,有缓冲及耐磨作用,不使粉尘直接冲击滤筒,因而能延长滤筒的使用寿命。
4、滤筒15度倾斜抽屉式安装,可使滤筒拆换_方便,而且除尘器本体内不设置传动部件,使其维修工作减至少。对一般性粉尘,滤筒可长期使用不需要_换,省去了常用袋式除尘器需经常换洗滤袋的繁琐工作,并节省了大量的维修费。
5、模块式组合,大小可以随意选择,可以扩大原有组合,增加除尘机组,而不需要对原有设备进行太多的改动。
6、滤筒除尘器在国外技术的基础上,结合我国的实际应用情况,进行了不断的改进和完善。具有结构简单,外形体积小,节约用地面积,维修方便,使用寿命长,除尘效率达99.9%.能作为细微粉尘的收集器,亦适合各种工况的除法过滤;能解决_细、潮湿、纤维性的捕集过滤材料的表面粉尘,剥离率95%以_优点。
<strong>斜插式滤筒除尘器</strong>
公司简介企业文化服务承诺安装实例联系方式 谷歌地图
公司地址:河北省沧州市泊头市王武镇郭千村 邮编:062150 电话:0317-8388881 0317-8388882 传真:0317-8388883 联系人:褚经理
手机:13784725611 15075705105 QQ:474714277 公司网址:http://jiaoyou78.com 邮箱:hbwyhb@126.com
河北午阳环保设备有限公司 
网站导航: 中频炉除尘器  电炉除尘器  焦化厂除尘器 焦炉机侧焦侧除尘器  焦化厂地面站除尘器  sitemap  sitemaps  支持:   关键字:中频炉除尘器 电炉除尘器  焦化厂除尘器  焦炉机侧焦侧除尘器  焦化厂地面站除尘器
友情链接:                               
富彩vip登录|首页 彩运网888 - 首页 彩运网888 - 首页 U9彩票799cc-u9彩票799绿色-绿色U9彩票旧版-u9彩票799手机版 2468彩票网 9759彩集团 - 首页 新币彩票|登录 1336cc盈彩网 - 首页